NUEVA PROMOCIÓN: Apartamentos dúplex Nuevo Milenio Fases I y II. San Juan de los Terreros (Pulpí). Murcia
Último apartamento tipo dúplex en fase I de este Residencial…
€133,000
Beausoleil, Cap-d'Ail, Niza, Alpes Marítimos, Provenza-Alpes-Costa Azul, Francia metropolitana, 06320, Fr
Venta
€1,200,000
ID de la propiedad :
PR.155.21
Promoción de nueva construcción: Casa en venta en Beausoleil French Riviera. Costa azul francesa.
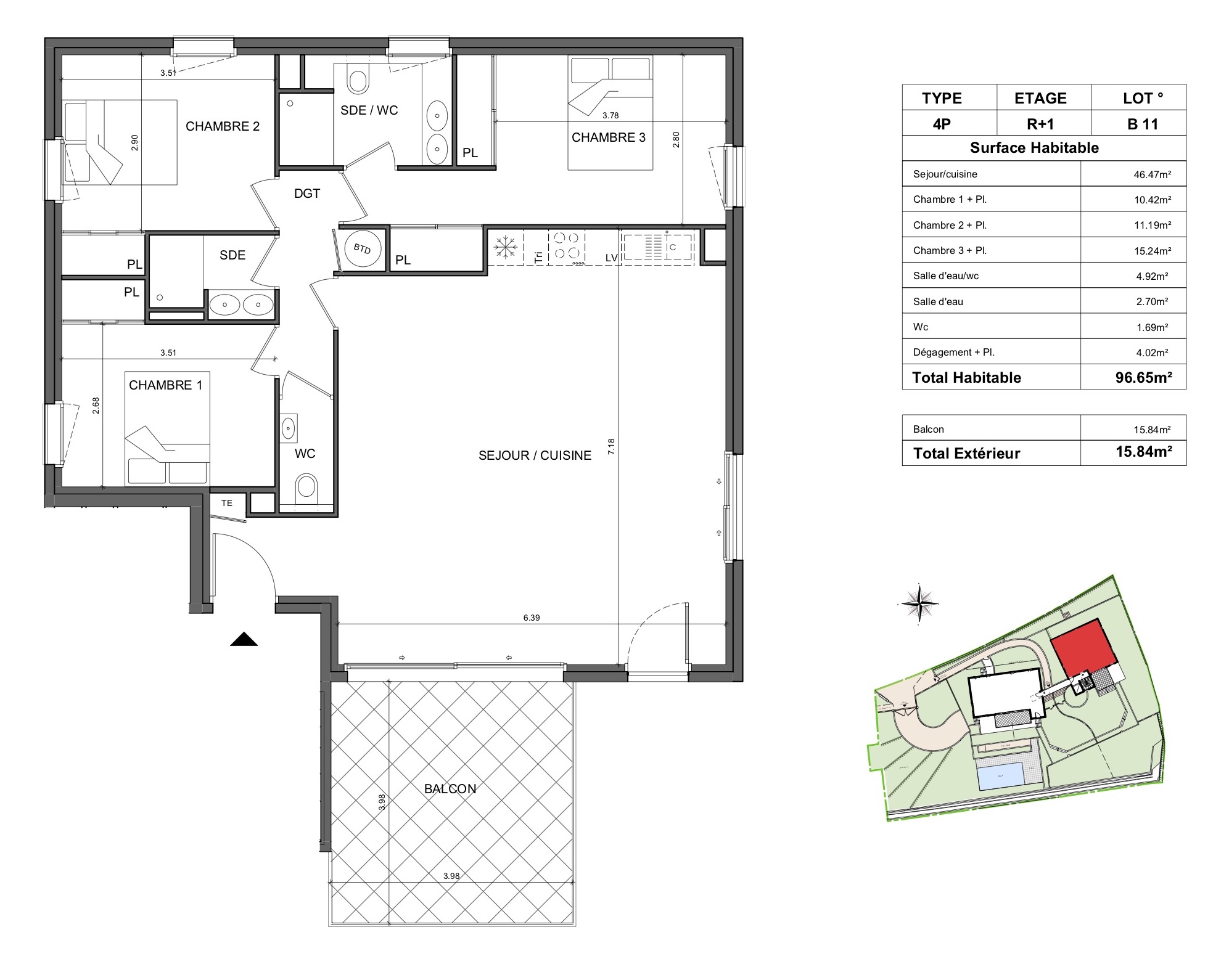
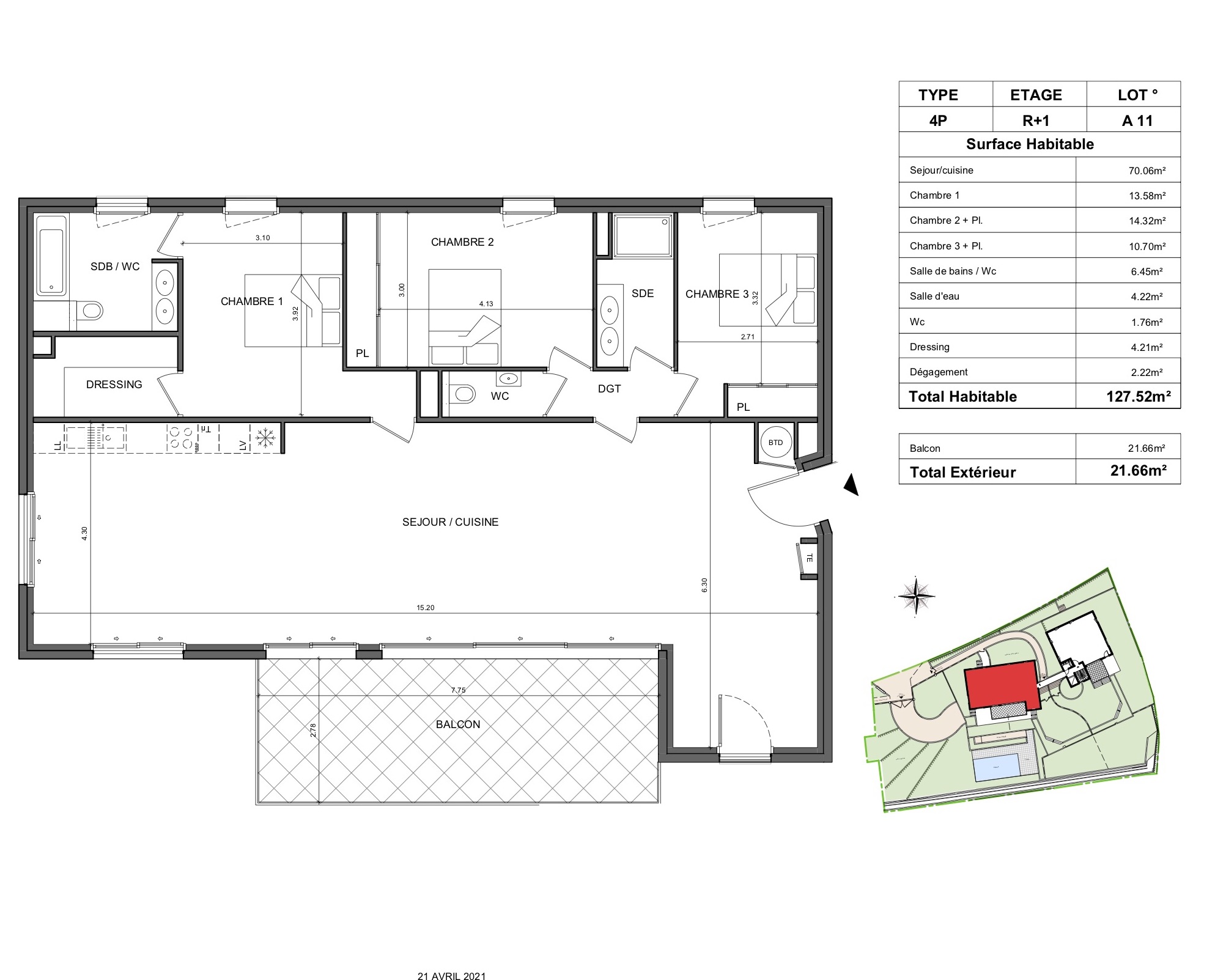
Apartamento en venta, nuevo programa excepcional, edificio de diseño moderno, acabados de alto nivel, piscina.
Entrega en 2023, a 1 kilómetro de Montecarlo, con vistas panorámicas desde el Rocher de Mónaco hasta Cap-Martin.
Dos apartamentos disponibles.
Apartamentos en planta baja , 4 habitaciones, superficie de 100M2 o 122M2, terraza de 16M2 o jardín de 404M2. Orientación sur.
Compuesta por: sala de estar de 46M2, cocina americana, dormitorio de 15M2, dormitorio de 11M2, dormitorio de 10M2, 2 baños, aire acondicionado, 2 cocheras.
creado por
Último apartamento tipo dúplex en fase I de este Residencial…
€133,000
Fantástico ático dentro de La Torre Golf Resort. Roldán, Torre…
€115,000
Apartamento en planta baja dentro de La Torre Golf Resort.Fabulosas…
€96,000
Apartamento en segunda planta dentro de La Torre Golf Resort.…
€85,000
Costa Azul. Nueva promoción: Beausoleil 91. Apartamentos